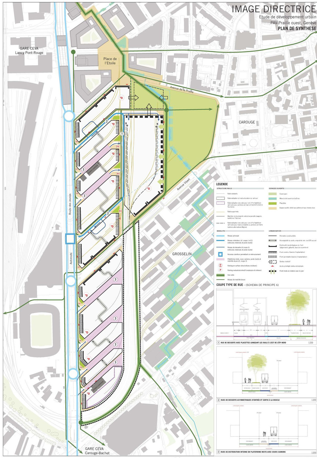
Type de publication Études et rapports Date de publication 1 janvier 2016 Auteur Département du territoire (DT) Publié dans Praille Acacias Vernets (PAV) Document Praille Ouest - image directrice Détail Praille Ouest - image directrice - 2016 Type de publication Études et rapports Date de publication 1 janvier 2016 Auteur Département du territoire (DT) Publié dans Praille Acacias Vernets (PAV)